本社博多店 092-571-7333
福岡二又瀬店 092-611-5626
下関店 083-222-6221
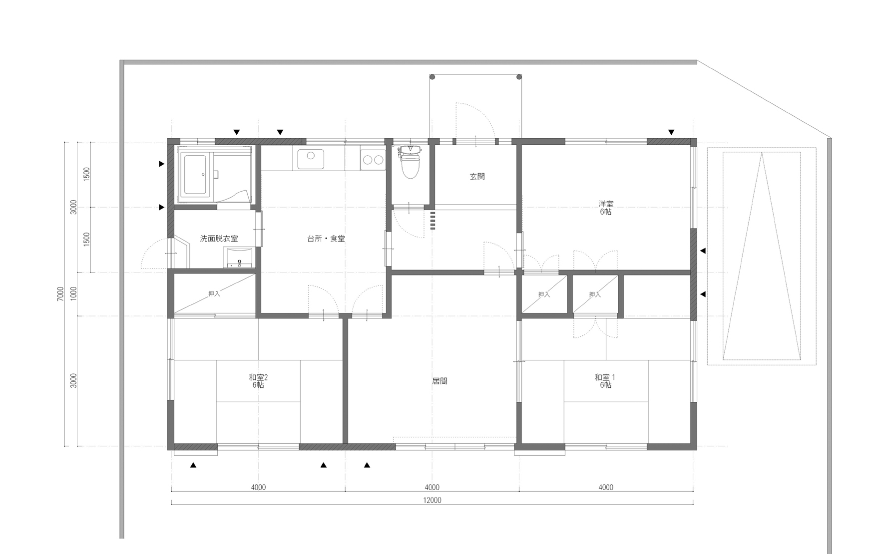
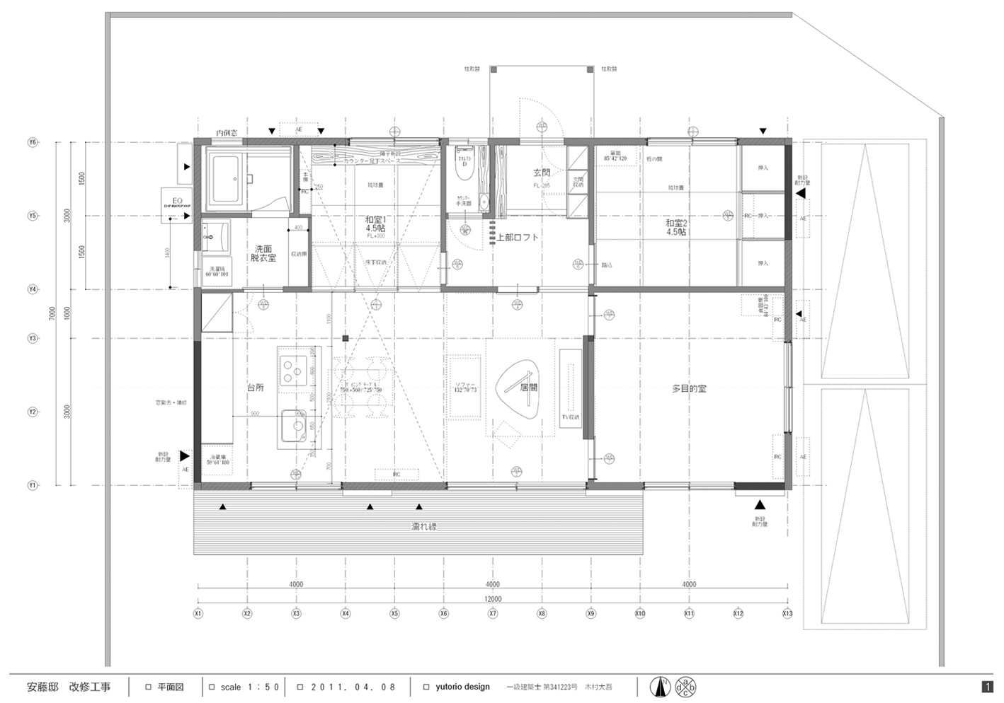
広々とした敷地に建つ築40年のハウスメーカー鉄骨造平屋。
北側にあったDKを小上がりの和室にし、庭に面して陽あたりや風通しのよい南側にLDKを配しました。
オーダーメイドキッチンとリビングテーブル、TVボードをチーク材で家具製作しました。
子供部屋は将来二室に間仕切れるように工夫しました。
瓦屋根の葺き替えと太陽光発電を設置しました。
床暖房を敷いた北欧パイン床材と珪藻土壁とシナ合板の天井のインテリア。