コンテンツへスキップ
本社博多店 092-571-7333
福岡二又瀬店 092-611-5626
下関店 083-222-6221
TOP
新着情報
設計/施工
リノベーション
リフォーム
リペア
新築
まちづくり
介護福祉
会社概要
企業理念/社歴
メンバー紹介
ショールーム
店舗情報
問合せ
メニュー
TOP
新着情報
設計/施工
リノベーション
リフォーム
リペア
新築
まちづくり
介護福祉
会社概要
企業理念/社歴
メンバー紹介
ショールーム
店舗情報
問合せ
Facebook-f
Instagram
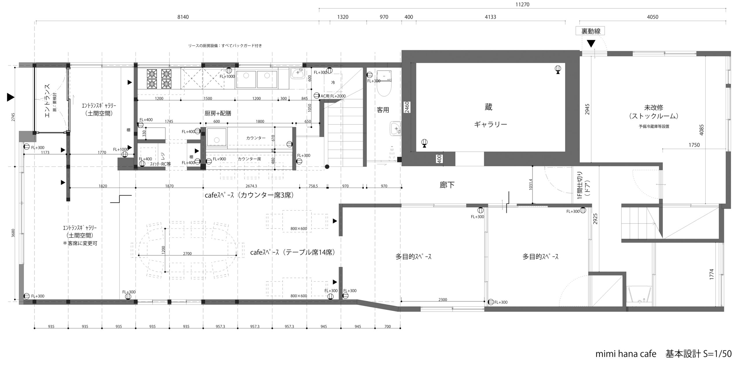
mimi hana cafe
設計:鈴木浩介建設設計事務所
施工:金剛住機株式会社
AFTER
BEFORE