ヴィンテージ家具のお店loolとのコラボマンションリノベーション。
ハイクオリティな家具付賃貸マンションの企画でyutoriodesignでデザインビルドさせてもらった事例。
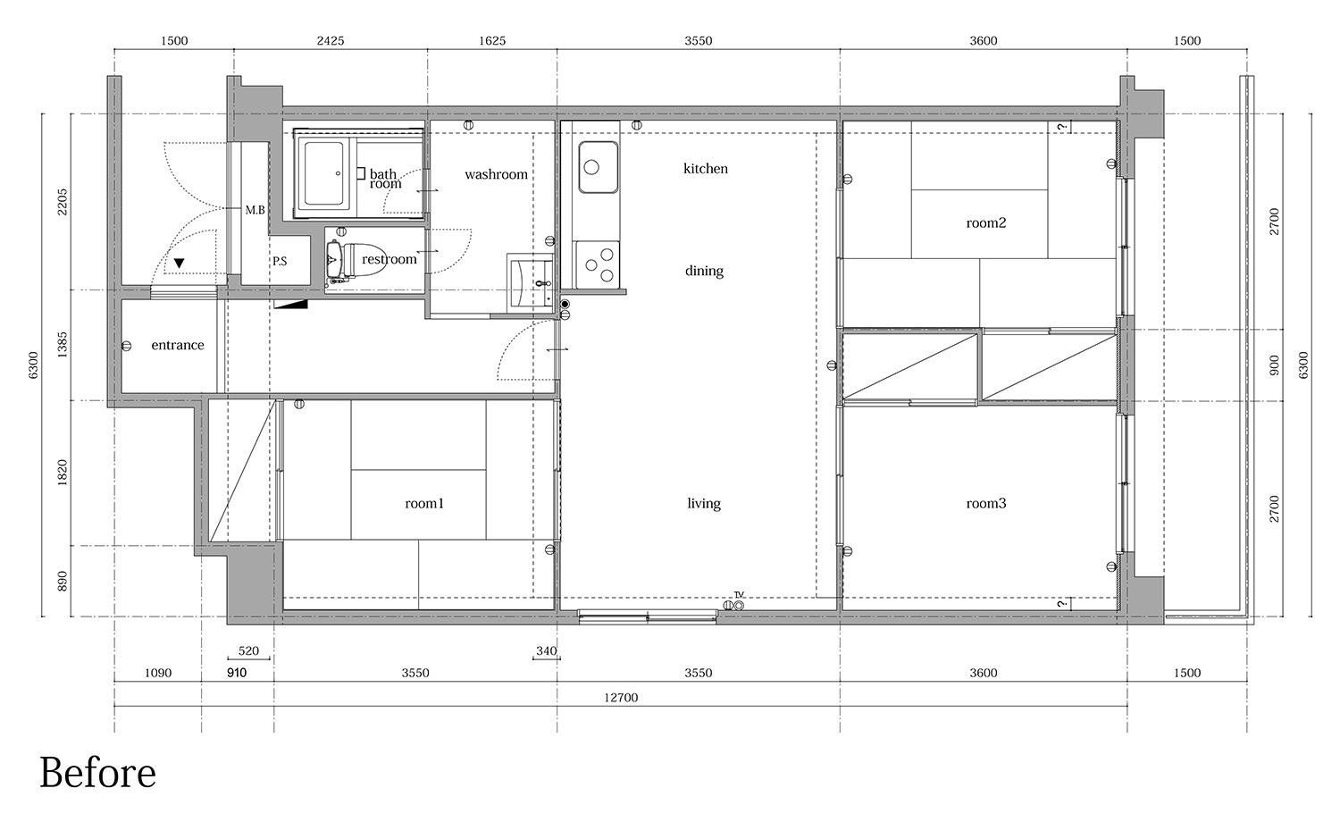
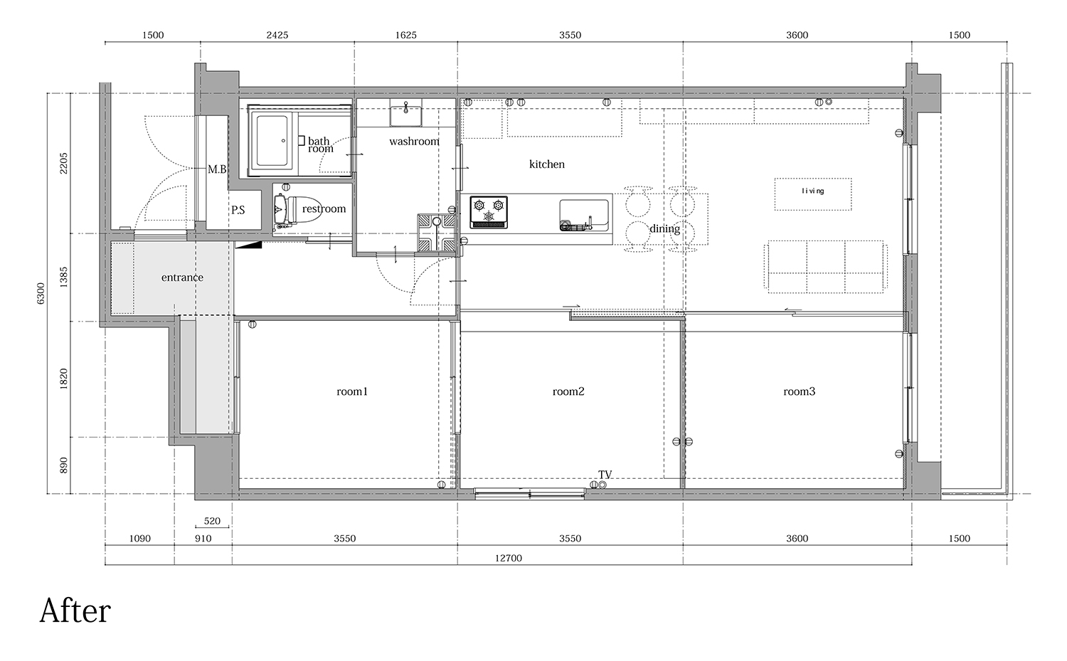
賃貸マンションとして、SOHO単身世帯ー夫婦世帯ー4人世帯とライフスタイルに合わせたフレキシブルなプランニング。
lool : http://www.loolool.jp
ヴィンテージ家具のお店loolとのコラボマンションリノベーション。
ハイクオリティな家具付賃貸マンションの企画でyutoriodesignでデザインビルドさせてもらった事例。
賃貸マンションとして、SOHO単身世帯ー夫婦世帯ー4人世帯とライフスタイルに合わせたフレキシブルなプランニング。
lool : http://www.loolool.jp